Ratusz Miejski w Oświęcimiu
Lokalizacja
Oświęcim
Inwestor
Miasto Oświęcim
Daty
2025
Powierzchnia
7 170m2
Zespół
Błażej Janik, Ewa Janik, Maciej Szweda, Barbara Hałat, Dawid Bierzyński
Nagrody
Wyróżnienie w dwuetapowym konkursie architektonicznym
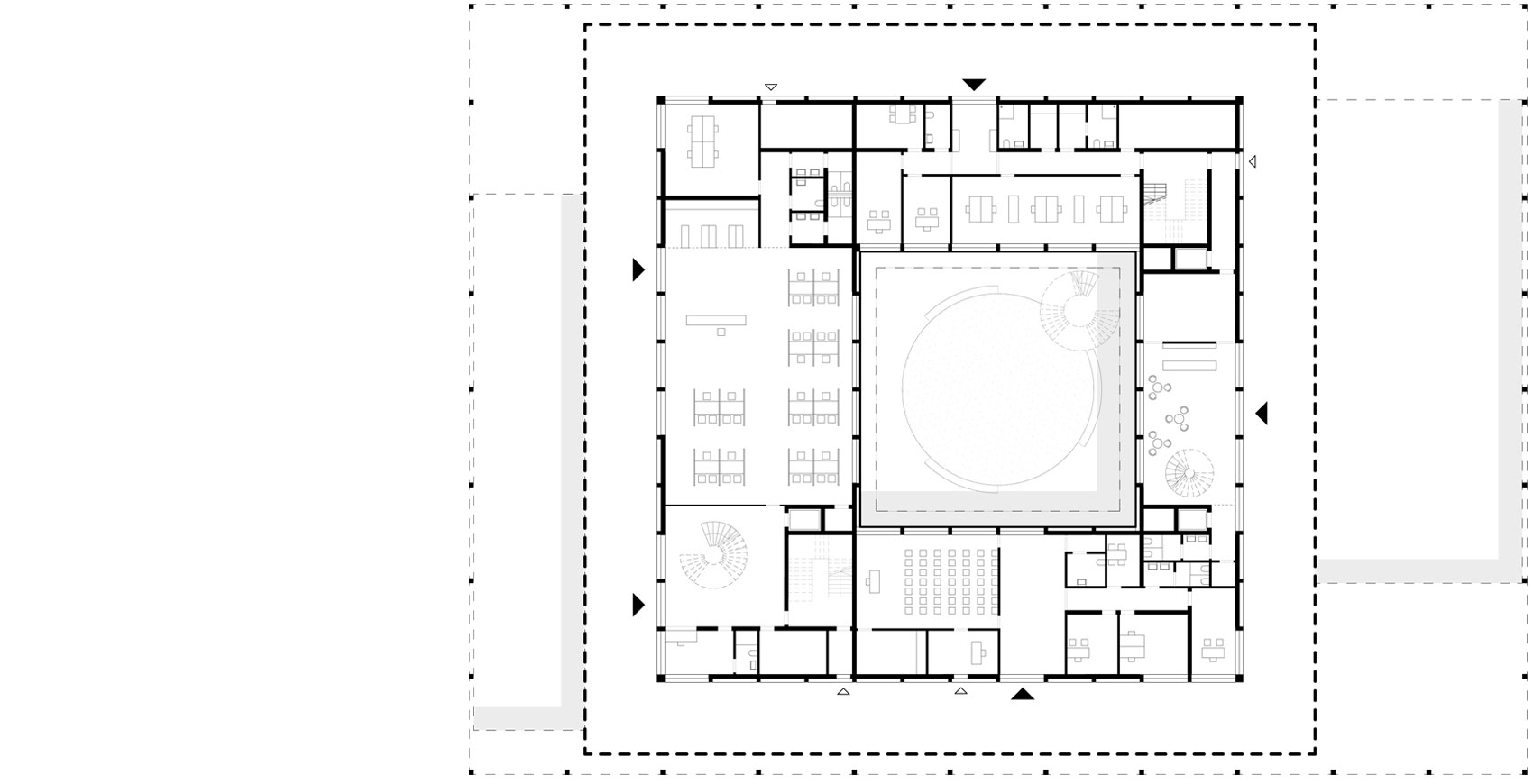
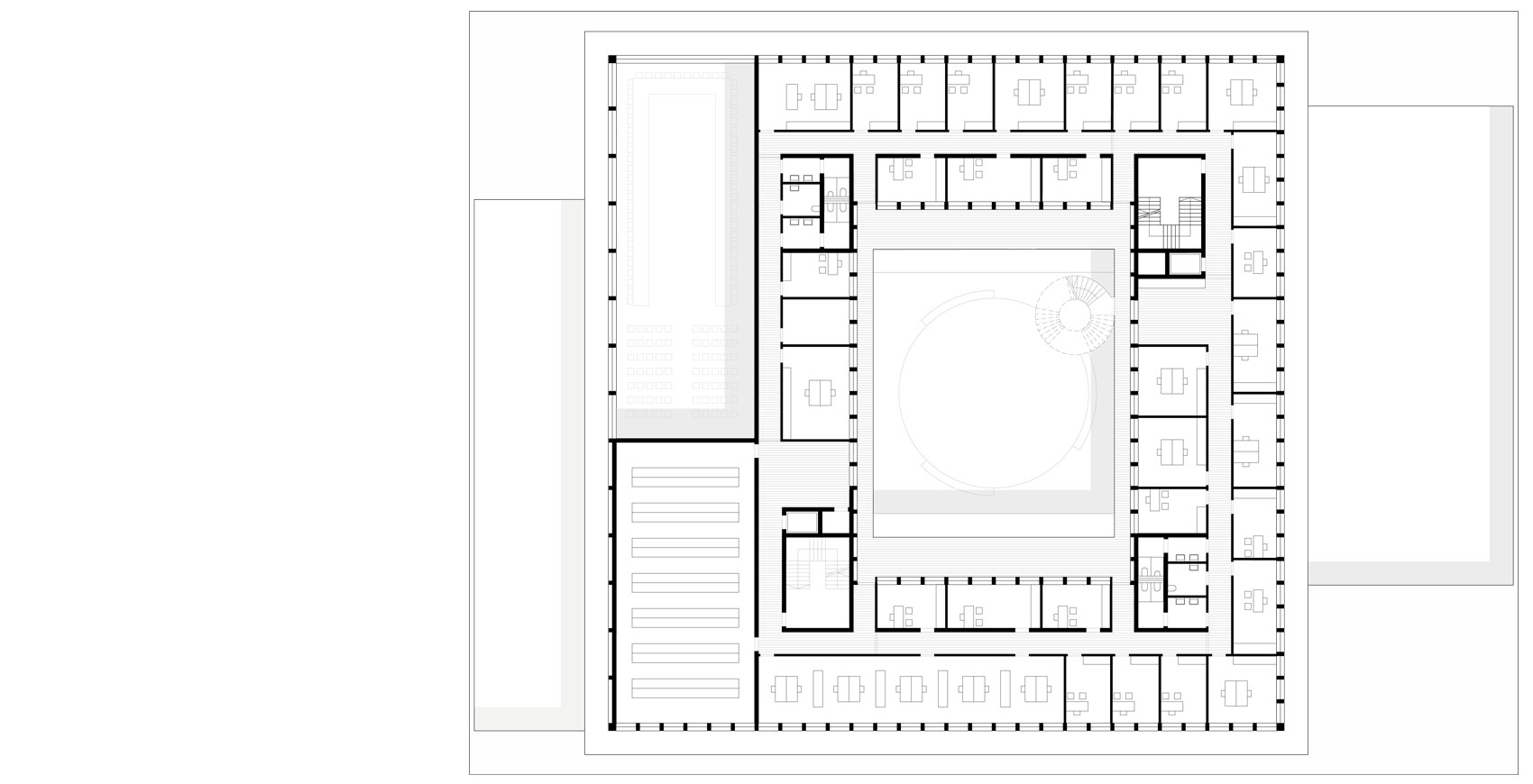
SYTUACJA
Projektowany budynek nawiązuje bezpośrednio do linii istniejącej zabudowy, opartej na ortogonalnym układzie przestrzennym, co pozwala mu idealnie wkomponować się w tą przestrzeń, nadając jej nowoczesnego charakteru.
Bryła budynku została zaprojektowana na planie kwadratu, co pozwoliło na uzyskanie zwartej formy, przełamanej kameralnym dziedzińcem, stanowiącym przestrzeń odpoczynku i kontemplacji.








