Basen kryty
Lokalizacja
Piaseczno
Inwestor
Gmina Piaseczno
Daty
2020
Powierzchnia
5 000m2
Zespół
Błażej Janik, Krzysztof Kaczmarczyk, Agata Machnio
Wizualizacje
S83
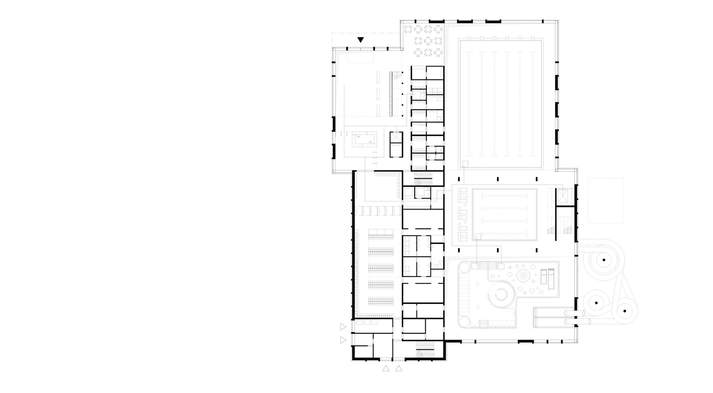
KONCEPCJA
Projektowany budynek basenu stanowi zestawienie czterech przenikających się prostopadłościennych brył, z których każda pełni funkcjonalnie inną rolę. Kubatury te różnią się wysokością i rozmiarami. W bryłach wyższych mieszczą się hala basenu sportowego oraz część rekreacyjna ze strefą saunarium. Części niższe od strony zachodniej zajmuje strefa wejściowa wraz z zapleczem szatniowo-sanitarnym oraz administracją. Całość została scalona za pomocą spójnej modularnej elewacji, wyróżniającej podziały poziome (cokół i piętro) oraz pionowe (nieregularny rytm pilastrów). Na południowej elewacji przewidziano zewnętrzną konstrukcję podwójnej zjeżdżalni, dostępnej z hali basenowej.






