Szkoła Podstawowa w Modlniczce
Lokalizacja
Modlniczka, Powiat Krakowski
Inwestor
Gmina Wielka Wieś
Daty
2025
Powierzchnia
3 265m2
Zespół
Błażej Janik
Ewa Janik
Maciej Szweda
Barbara Hałat
Dawid Bierzyński
Ewa Janik
Maciej Szweda
Barbara Hałat
Dawid Bierzyński
Nagrody
3 miejsce w konkursie architektoniczno-urbanistycznym
SYTUACJA
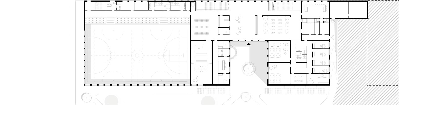
Układ obiektu został dostosowany do naturalnych spadków terenu poprzez podział programu funkcjonalnego na kilka niezależnych brył, rozmieszczonych w układzie tarasowym.
Poszczególne bryły powiązane zostały linearnym korytarzem, który stanowi główną oś komunikacyjną całego zespołu. Jego usytuowanie ma również znaczenie funkcjonalne – pełni rolę naturalnej bariery akustycznej, chroniącej wnętrza dydaktyczne przed hałasem generowanym przez pobliską obwodnicę.







