Nowy budynek Akademii Muzycznej
aksonometria założenia
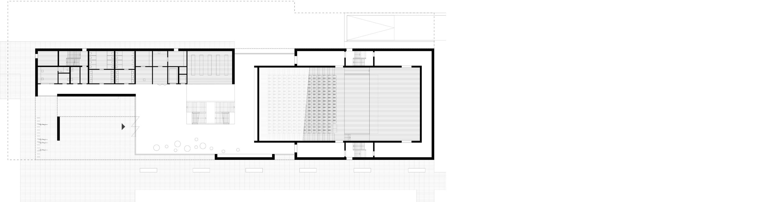
KONCEPCJA
Projektowany budynek ma formę prostopadłościanu ustawionego równolegle względem ulicy Wojewódzkiej i historycznego gmachu uczelni. Pierzeję obiektu wyznacza wytyczona w miejscowym planie zagospodarowania przestrzennego obowiązująca linia zabudowy. Budynek kontynuuje strukturę urbanistyczną kampusu zamykając założenie od północy. Strefę wejściową wraz z szerokim placem wykreowano w południowo-zachodnim narożniku budynku, w zwieńczeniu osi ulicy Zacisze – zdaniem autorów pozwoli to na domknięcie wnętrza urbanistycznego, które faktycznie pełni dziś rolę strefy przedwejściowej dla trzech gmachów uczelni (reprezentacyjne wejście od Wojewódzkiej nie jest dziś używane i ma charakter wyłącznie historyczny). Tym samym ulica Zacisze kompozycyjnie stałaby się wewnętrznym traktem kampusu (łączącym wszystkie obiekty dydaktyczne), który może stanowić bardzo atrakcyjną przestrzeń miejską służącą nie tylko uczelni ale także okolicznym mieszkańcom.
Koncepcja zakłada monolityczną bryłę budynku, rozrzeźbioną kilkoma otworami i wnękami wpuszczającymi światło do środka. Z założenia jest to obiekt otwierający się na wewnętrzne patia i zorganizowany wokół nich. Jednocześnie posiada rzadko perforowaną, grubą skorupę zewnętrzną izolującą od negatywnych czynników komunikacyjnych (hałas i drgania dochodzące z ulicy i linii kolejowej). Stąd też powściągliwa forma budynku i oszczędne w środkach fasady. Tym sposobem obiekt formalnie stanowi przeciwwagę dla historycznego, bogatego w detal architektoniczny głównego gmachu Akademii, równocześnie nawiązując do architektury budynku Centrum Edukacji Muzycznej. Pionowe wcięcia na elewacji południowej nawiązują do bryły oraz strefy wejściowej głównego budynku, tym samym respektując jego układ urbanistyczny.









